滨城城市更新项目拟调整!
2026/2/6 18:39:59 浏览数:271

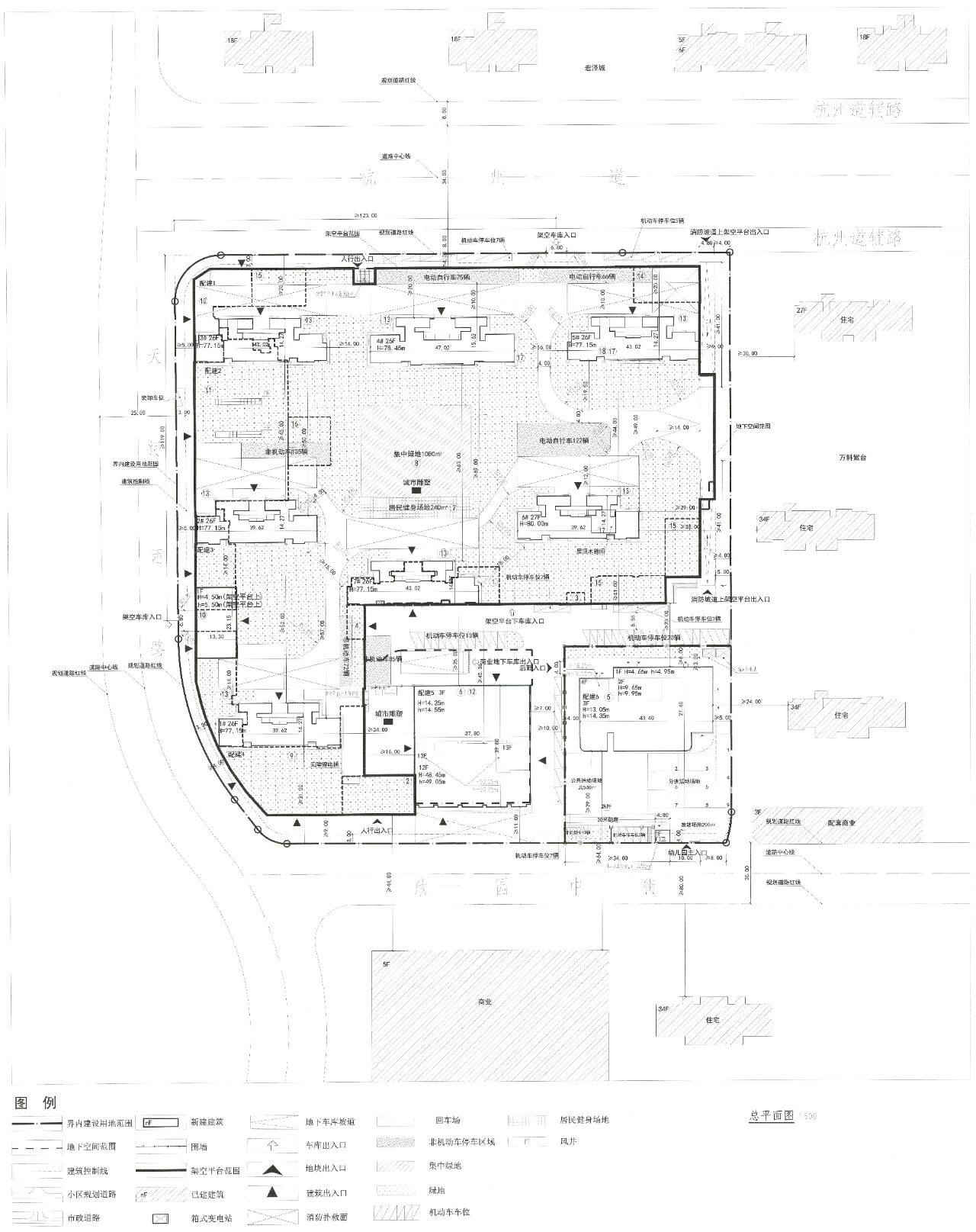
2月5日,天津市规划和自然资源局滨海新区分局发布“(滨海新区)关于杭州道街建材路片区城市更新项目EPC总承包(建材路19号重建部分)建筑设计方案总平面图(调整)的公示”。

公示信息对项目变更进行了说明,说明称——
因配建5功能改变,修改配建5建筑轮廓,相应地下室轮廓线调整。
因配建5面积调整,对相应总图面积指标调整。配套公建建筑面积由18991.07㎡调整为18777.73㎡。地上计容面积由99791.07㎡调整为99577.73㎡。
因配建5功能和面积调整,对原审定机动车停车位和非机动车停车位进行相应调整。机动车停车位数量由1096辆调整为1092辆,非机动车停车位由514辆调整为525辆。


公示的配套设施表显示,配套的养老服务中心、商务办公均设于配建5。
公示时间为2026年2月5日至2026年2月13日。


杭州道街道建材路片区城市更新项目东至万科紫台、西至津山铁路、北至杭州道、南至欣园中街,将通过整体开发建设进行彻底盘活,新建标准化智慧菜市场和邻里中心、精品幼儿园、养老服务中心和公共停车场。
项目还将对建材路片区的环境进行综合提升,利用闲置的泰达客运站及周边用地策划建设铁路体育休闲广场,设置公交首末站,并对韶山路沿线环境进行提升改造,为贻静园、贻成东园、向阳居、安琪花园、贻顺园等小区进行应急修缮,新建天河西路和欣园中街,让周边环境焕然一新。
全部工程预计在2027年完成。

来源:天津市规划和自然资源局网站、天津广播
来源:滨城时报